韋鵲:名門天境——清新淡雅的原木日式
瀏覽量:333
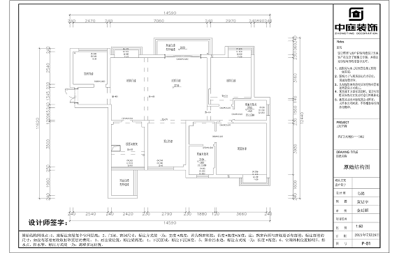
原始戶型圖
一家四口人,兩個女兒,家里請有阿姨,這套房預計住5年時間,要喜歡的日式風格,不過預算投入不多,要性價比最高。要求收納空間夠多,同時合理規劃。
業主喜好:女主人平日喜歡喝茶、寫書法、彈古琴、尤克里里,男主人跟女兒喜歡看書,小女兒喜歡收藏盲盒,養有一只小狗。喜歡種花草。

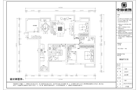
平面布置方案
茶室:業主平日喝茶聊天,接待,冥想,同時滿足業主寫書法、談古琴,增加生活情調。
廚房:雙一字形廚房,能容納多人同時使用
休閑陽臺:獨立休閑陽臺,可養小寵物,可種必須陽光照射到的植物,增加生活幸福感
主臥:寬敞舒適的臥室,L型衣帽間,超大儲物空間,休閑飄窗,滿足業主休閑娛樂需求。
客廳效果圖VS客廳實景圖




溫潤內斂的客廳,圍合布局以“低重心”的方式強化空間包裹感,給予家庭成員更多“安全與愛”的心理暗示,任屋外風吹雨打,依然能夠安心地遨游書海。
廚房效果圖VS廚房實景圖


櫥柜設計了一些玻璃柜的形式
整個廚房在存儲空間上也做足了規劃,日式收納及空間的運用總能提升家的質感。 頂柜也是用了木色和白色搭配,增大了儲物空間。一些墻壁上的掛鉤等收納神器,這個時候可以派上用場了。
臥室效果圖VS臥室實景圖


回歸臥室本質,讓舒睡與休憩功能更純粹。
居室空間主要采用原木元素拼湊而成原木風格的室內裝修沒有繁瑣多變的裝飾,木質物件呈現出原木的紋理和色澤,營造出充滿木香的自然氛圍
相關案例推薦RELATED TO THE CASE
查看更多案例-
現代風格丨 四居室以上 丨120-150㎡
-
現代風格丨 三居室 丨80-120㎡
-
極簡風格丨 三居室 丨80-120㎡
-
其它風格丨 三居室 丨80-120㎡
預約整裝設計方案服務
*已有【1000+】人成功預約
設計資訊DESIGN INFORMATION
查看更多資訊-
-
15
2022-05
南寧自有工人的裝修公司
南寧自有工人的裝修公司,說到裝修,自... 查看詳情>> -
15
2022-05
如何選南寧裝修公司省錢又省心?
在南寧新房裝修如何選擇裝修公司省錢又... 查看詳情>> -
15
2022-05
南寧新房選裝修公司一定要看這8大保障!
南寧新房裝修怎么選裝修公司,這8大保... 查看詳情>> -
15
2022-05
南寧新房裝修怎么選裝修公司?
不操心的裝修,往往是大部分人對房子裝... 查看詳情>> -
15
2022-05
南寧裝修公司怎么選?
說到裝修,大部分業主最先聯想到的就是... 查看詳情>>



