王聰:天健世紀花園——高級禪意侘寂風
瀏覽量:384
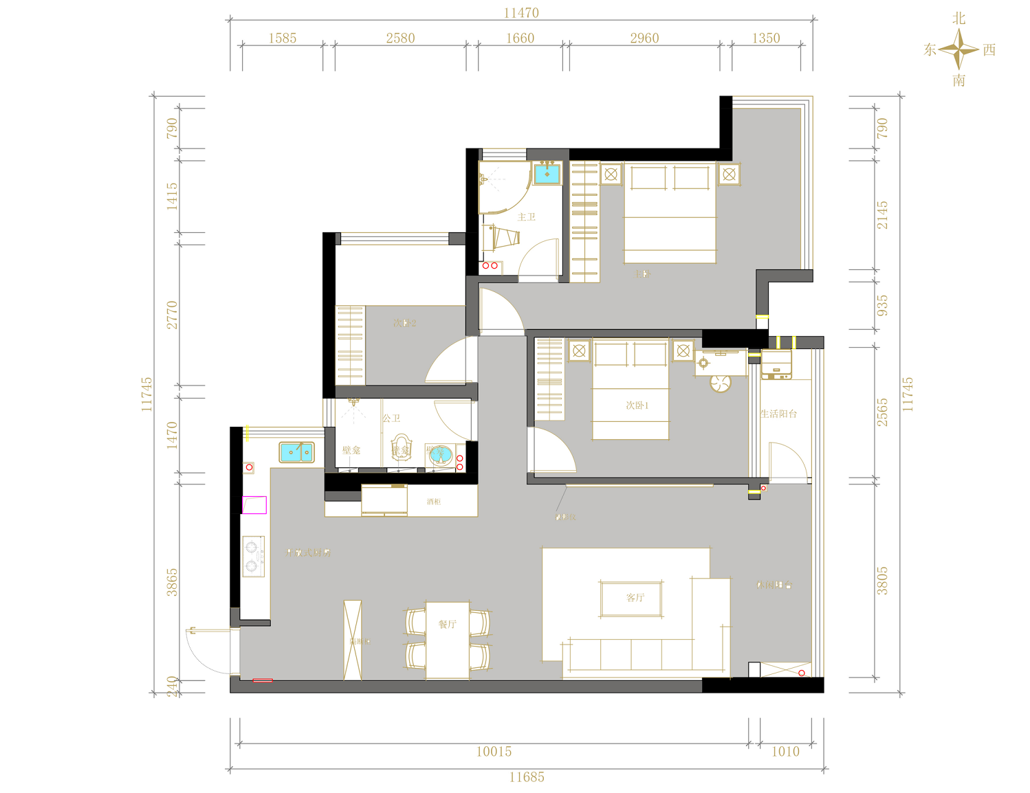
原始戶型圖
這是一個二手房改造項目,二手房原結構存在很多的問題,而我們業主是一個非常有品味的小姐姐,經常帶著相機去探店,咖啡店,家居店,展覽館等等,人們常說,好看的東西都很克制,但我們設計之初對本案的初心是既具有物質的實用功能,又具有精神的愉悅功能。

平面布置圖
‘T’字動線非常合理,入戶鞋柜設計避免開門一覽無余的尷尬,更利于保護業主的私密性。在風水也避免了穿堂煞。
整體風格走向為侘寂風,還原生活的樸素與寧靜,這個戶型的痛點是廚房過小,入戶沒有玄關,且采光差。設計把原有廚房往外擴,與原有入戶形成有序的一體動線。開放式廚房,嵌入式冰箱巧妙設計與原有柱子融為一體。
玄關


客廳效果圖VS客廳實景圖








樸實、純粹的材質與簡約、自然,不帶一絲造作的中性配色,賦予寧靜的寂氛圍,在這座繁鬧得城市覓得一處安逸。是一種比極簡風更加冷淡的風格,不會有跳脫的亮色出現,沒有強沖擊力的色彩,常用大地色作為基礎用色,米色系、高級灰也是常用的色調。枯寂、素凈的色調正是侘寂風所傳達的精髓。
客餐廳效果圖VS客餐廳實景圖



設計開放式廚房,西廚邊安置嵌入式冰箱,空間秩序的重組,讓餐廚區域更顯開闊,實木櫥柜的顏色更顯深韻,越看越有其中味道。長虹玻璃門式的酒柜參與中西廚之間,廚房舍棄以往的扣板吊頂,轉用石膏板吊頂,筒燈代替。在這里,總歸要卸下一身疲憊,與生活默然對話。
臥室效果圖VS臥室實景圖



淺灰色與原木色的基調在空間中暈染開來,營造出質樸舒適的休憩空間。
相關案例推薦RELATED TO THE CASE
查看更多案例-
現代風格丨 四居室以上 丨120-150㎡
-
現代風格丨 三居室 丨80-120㎡
-
極簡風格丨 三居室 丨80-120㎡
-
其它風格丨 三居室 丨80-120㎡
預約整裝設計方案服務
*已有【1000+】人成功預約
設計資訊DESIGN INFORMATION
查看更多資訊-
-
15
2022-05
南寧自有工人的裝修公司
南寧自有工人的裝修公司,說到裝修,自... 查看詳情>> -
15
2022-05
如何選南寧裝修公司省錢又省心?
在南寧新房裝修如何選擇裝修公司省錢又... 查看詳情>> -
15
2022-05
南寧新房選裝修公司一定要看這8大保障!
南寧新房裝修怎么選裝修公司,這8大保... 查看詳情>> -
15
2022-05
南寧新房裝修怎么選裝修公司?
不操心的裝修,往往是大部分人對房子裝... 查看詳情>> -
15
2022-05
南寧裝修公司怎么選?
說到裝修,大部分業主最先聯想到的就是... 查看詳情>>



