秦楨:云星· 錢隆首府——小戶型造大空間
瀏覽量:295
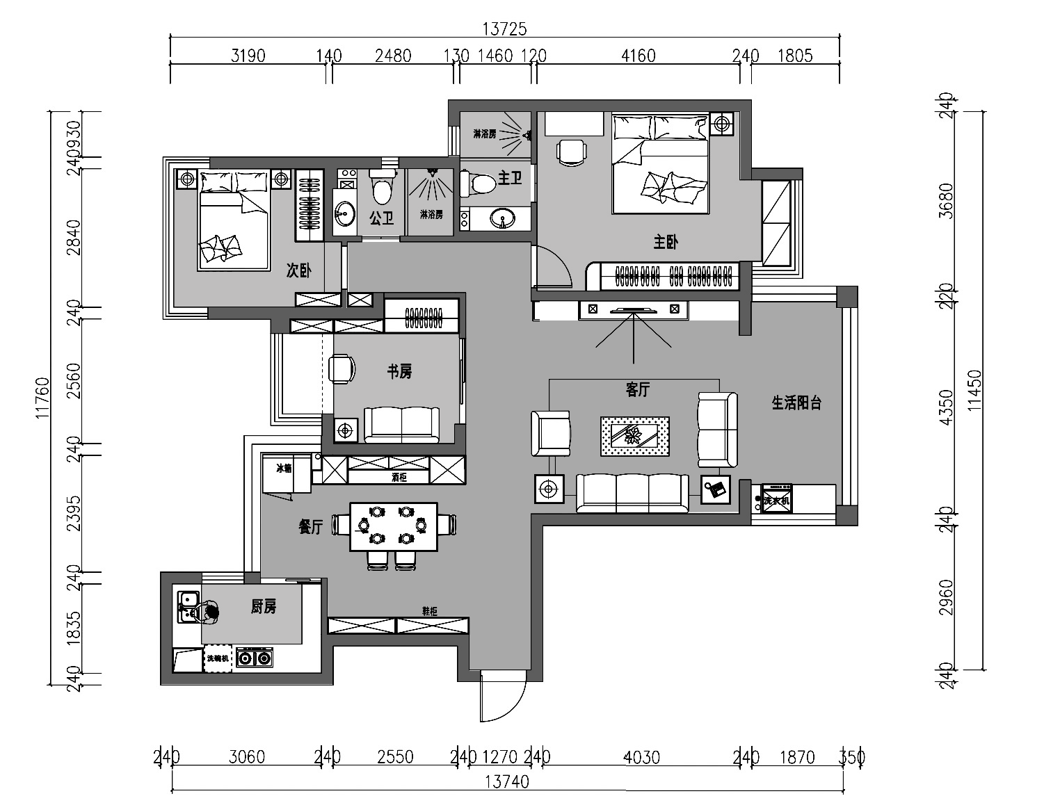
原始戶型圖
原始戶型雖為雙陽臺設計,但由于S形的客餐廳錯位結構,使得整個空間無論是采光、通風上,都不算是非常理想。兩個次臥大小分別僅為7.4平米和7平米,給人的體感上顯得非常擁促。

平面布置圖
1、改變書房的開啟方向,面朝客廳,實現客廳及書房的南北通透。補充客廳的采光,實現活動及私人空間的分區更加明朗。
2、拓展生活陽臺區域納入至餐廳,實現多人化聚餐功能。
3、拓展客廳大陽臺,景觀晾曬區合二為一。
4、多功能柜體組合設計,貫穿整個全房設計,充分實現收納置物的實用功能。
客廳效果圖VS客廳實景圖



實景



使用更親近自然的棉、麻、木搭配黑、棕、白、灰色,在裝飾上極度的克制,給人高品質,舒服的感受。削弱復雜造型和色彩對人情緒的影響,反而產生了治愈的力量。克萊因藍沙發的點睛之筆,顯得整個空間更加自信,給人傳遞高級的視覺感受。
餐廳效果圖VS餐廳實景圖



空間大面積描繪溫暖的棕灰色調,將優雅而內斂的視覺觀感散布于每一個細節之中。設計師嘗試以一種接近生活本質的視角觀察點滴日常的豐富性,將生活主場景面向自然景色,創造開闊明亮、安靜舒適的居住氛圍,讓每一位居住其中的人與自然對話,感受自在。
多功能書房效果圖VS多功能書房實景圖


幕布滿足偶爾的觀影需求,既是獨立的工作書房,也是休閑時的私人影音空間。娛樂工作兩不誤,愛情與事業雙豐收。設計師在沙發旁配備了落地燈插座,既增加了書房的燈光層次,也算是一個小小的閱讀區,一杯咖啡,一盞燈,坐在沙發上慵懶的看著書,愜意的享受著生活。
臥室效果圖VS臥室實景圖


竹炭飾面護墻板做背景,是大空間設計元素在小空間的延續。主臥沒有做過多的造型,大量留白,通過軟裝設計師的巧手來營造氛圍,利用不同色系與材質對比組合形成精致豐盈的裝飾效果,風吹簾動,琉光行云,主臥釋放著樂且晏如的溫柔情緒
相關案例推薦RELATED TO THE CASE
查看更多案例-
現代風格丨 四居室以上 丨120-150㎡
-
現代風格丨 三居室 丨80-120㎡
-
極簡風格丨 三居室 丨80-120㎡
-
其它風格丨 三居室 丨80-120㎡
預約整裝設計方案服務
*已有【1000+】人成功預約
設計資訊DESIGN INFORMATION
查看更多資訊-
-
15
2022-05
南寧自有工人的裝修公司
南寧自有工人的裝修公司,說到裝修,自... 查看詳情>> -
15
2022-05
如何選南寧裝修公司省錢又省心?
在南寧新房裝修如何選擇裝修公司省錢又... 查看詳情>> -
15
2022-05
南寧新房選裝修公司一定要看這8大保障!
南寧新房裝修怎么選裝修公司,這8大保... 查看詳情>> -
15
2022-05
南寧新房裝修怎么選裝修公司?
不操心的裝修,往往是大部分人對房子裝... 查看詳情>> -
15
2022-05
南寧裝修公司怎么選?
說到裝修,大部分業主最先聯想到的就是... 查看詳情>>



