黃有斌:翡翠時光——精工、材質打造現代新輕奢生活
瀏覽量:272
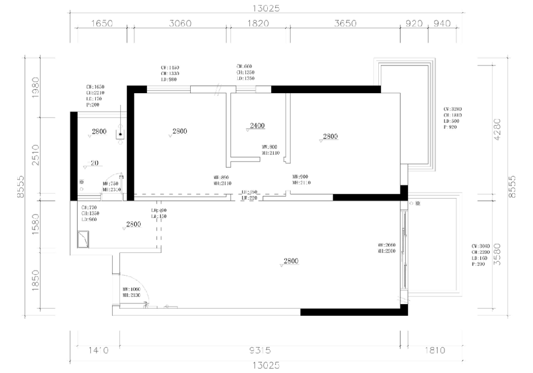
原始戶型圖
對于年輕的業主來說,豪奢不是最重要的,溫暖、輕松、愉悅、充滿生活氣息的品質生活才是她真正的需求所在。
比起在視覺層面的迎合,適宜的大小、滿足日常居住的功能性、舒適的空間氛圍更能打動她。

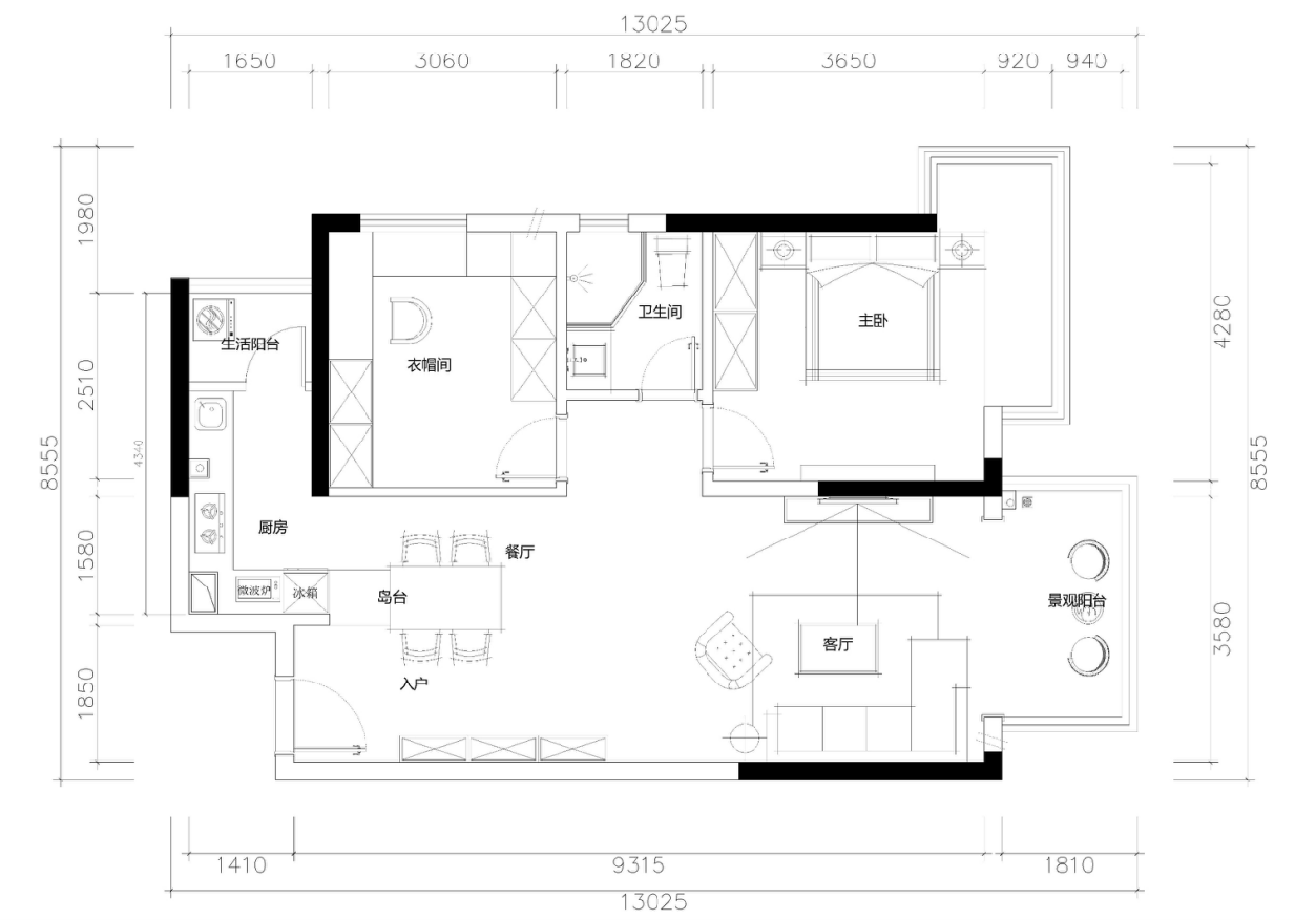
平面布置圖
1、業主是個年輕時尚的單身女生,對房子的要求就是在視覺層面的迎合,適宜的大小、滿足日常居住的功能性、舒適的空間氛圍溫馨。
2、動線上簡潔明了,無空間上的浪費,每個區域的空間利用都能和業主的需求一致。
3、該戶型的痛點就是由于陽臺外拓做了封窗處理,晾曬問題以及入門處空間狹小,餐桌和鞋柜距離就近。
4、針對兩處問題利用廚房的小陽臺放置洗衣機及烘干機。鞋柜與酒柜結合,鞋柜采用平板柜門過度到酒柜采用的是暗藏燈帶玻璃柜門,修飾掉鞋柜正對著餐桌的不適感。

客廳效果圖VS客廳實景圖



輕奢風格的空間以金屬、皮革的中性色調為主,用色彩的純度傳遞細膩的質感。
造型簡潔,線條流暢的家具組合搭配,營造出穩定、協調、溫馨的空間感受,滿足現代年輕家庭的輕奢需求。
餐廳效果圖VS餐廳實景圖


開放式餐廳將巖板臺面化為餐桌,制造出空間的體塊感,明晰空間功能屬性,而造型獨特的藝術品落于其上,在強烈風格的碰撞下,空間彌漫著一種當代生活與藝術美學生長在一起的日常感。用陳設軟裝來分隔空間的功能屬性,讓生活擁有更多可能。
臥室效果圖VS臥室實景圖


無論是石英石也好、瓷磚也好,還沒有哪種材料,既能達到大理石的美貌,又能實現堅固耐用的功能,直到巖板的出現,交織出大氣而端雅的秩序美與層次感,為空間的內在精神找到恰到好處的外在表現形式,在創新中演繹生活的格調。
相關案例推薦RELATED TO THE CASE
查看更多案例-
現代風格丨 四居室以上 丨120-150㎡
-
現代風格丨 三居室 丨80-120㎡
-
極簡風格丨 三居室 丨80-120㎡
-
其它風格丨 三居室 丨80-120㎡
預約整裝設計方案服務
*已有【1000+】人成功預約
設計資訊DESIGN INFORMATION
查看更多資訊-
-
15
2022-05
南寧自有工人的裝修公司
南寧自有工人的裝修公司,說到裝修,自... 查看詳情>> -
15
2022-05
如何選南寧裝修公司省錢又省心?
在南寧新房裝修如何選擇裝修公司省錢又... 查看詳情>> -
15
2022-05
南寧新房選裝修公司一定要看這8大保障!
南寧新房裝修怎么選裝修公司,這8大保... 查看詳情>> -
15
2022-05
南寧新房裝修怎么選裝修公司?
不操心的裝修,往往是大部分人對房子裝... 查看詳情>> -
15
2022-05
南寧裝修公司怎么選?
說到裝修,大部分業主最先聯想到的就是... 查看詳情>>





